PlanSwift Review

Our score 8.2
What is PlanSwift?
Software Review: A Powerful Solution for Construction Professionals
As a construction professional, I understand the challenges of accurate takeoff and construction estimating. Recently, I had the opportunity to test a software that claims to simplify and streamline these processes, and I must say, I was thoroughly impressed.
Intuitive User Interface:
The user interface of this software is sleek and user-friendly, allowing me to effortlessly navigate through its various features. It presents information in a well-organized and visually appealing manner, making it easy for even non-technical individuals to use effectively.
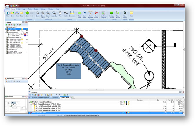
Precision Takeoff:
One of the standout features of this software is its powerful takeoff functionality. I was able to accurately measure and quantify quantities of materials, including lengths, areas, and volumes, with just a few clicks. This tool eliminated the need for manual calculations and significantly reduced errors in my estimates.
Robust Construction Estimating:
With the construction estimating feature, I was able to create detailed estimates quickly and accurately. I could easily assign costs to specific items and quantities, ensuring that my estimates were as precise as possible. This software also allowed me to customize and save templates, saving me valuable time on future projects.
Seamless Integration:
This software seamlessly integrates with other commonly used construction software, allowing for smooth data transfer and collaboration. I was able to import blueprints, drawings, and other project files effortlessly, enhancing my overall workflow and productivity.
Real-Time Collaboration:
I was pleasantly surprised by the real-time collaboration feature of this software. It enabled me to work simultaneously with team members on the same project, making communication and coordination a breeze. We could easily track changes, add comments, and share progress, ensuring that everyone was on the same page throughout the construction process.
Key Features:
- Intuitive and user-friendly interface
- Precision takeoff capabilities
- Robust construction estimating
- Seamless integration with other software
- Real-time collaboration
Frequently Asked Questions:
1. Can this software be used by individuals with minimal technical knowledge?
Yes, this software is designed to be user-friendly and intuitive, allowing individuals with varying technical expertise to utilize its features.
2. Does this software offer customization options for templates?
Absolutely! This software provides the flexibility to customize and save templates, saving significant time and effort on recurring projects.
3. Can I collaborate with team members in real-time using this software?
Yes, this software offers real-time collaboration features, enabling seamless communication and coordination among team members working on the same project.
All in all, this software has undoubtedly become an invaluable tool in my construction toolkit. Its precision, ease of use, and collaborative capabilities make it an essential asset for any construction professional. I highly recommend considering this software for all your construction software needs.
Overview of PlanSwift
Overview of PlanSwift Features
- Specify Units of Measurements
- Share Estimates
- Quick Estimating
- Drag and Drop
- File Types
- Volumes
- Takeoff Templates
- Print and Export Estimates
- Item Counts
- Areas
- Overlays
- Annotations
- Assemblies and Parts
- Calculate Measurements Instantly
- Point and Click
- Selection Tools
- Linear Measurements
- Takeoff Templates
- Import Blueprints, Projects, and Jobs
















Add New Comment